Casa semindipendente in vendita

Feltre, Via Semeda
€ 450.000
5 locali 5 locali
200 Mq 200 Mq
3 bagni 3 bagni

Casa semindipendente in vendita

Feltre, Via Semeda

Descrizione annuncio

NOSTRA ESCLUSIVA DI VENDITA////

Feltre, loc. San Paolo

Proponiamo oggi questa incantevole villa semindipendente; sita in una delle zone piĂš suggestive di Feltre, caratterizzata da tranquillitĂ  e comfort.

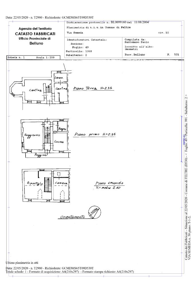
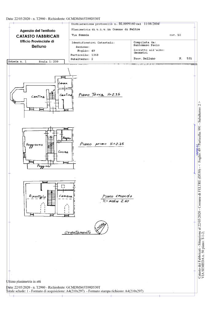
Al piano terra l'immobile presenta un'ampia taverna con caratteristico caminetto, lavanderia e un primo bagno di servizio.

Proseguendo al piano primo si apre la zona giorno, composta da un'ampio salone, una luminosa cucina e il secondo dei tre bagni. La luce del piano è originata anche dalla porta-finestra che da sull'ampio giardino.

Il secondo piano ospita la zona notte, formata da tre ampie camere matrimoniali e dal terzo ed ultimo bagno della casa. Tutto il piano è illuminato da finestre e Velux.

A completare la proprietĂ  un vasto giardino che offre una vista mozzafiato sullo splendido panorama feltrino, sul castello e sulle prealpi, che dominano la vallata.

Per ulteriori informazioni contattateci in Agenzia e seguiteci anche su facebook, cliccando 'mi piace' sulla pagina Gruppo Tecnocasa Feltre. Scaricate gratuitamente l'App Tecnocasa sul vostro smartphone e sarete sempre aggiornati sulle nostre proposte di vendita.

Mostra tutto

Nelle vicinanze

Trasporto pubblico Trasporto pubblico
Feltre
Feltre
300 m
Feltre FS
Feltre FS
340 m
Trasporto pubblico
610 m
Ricariche auto elettriche Ricariche auto elettriche
Villa San Liberale
2,2 Km
Scuole Scuole
Scuole
240 m
Istituto Canossiano
530 m
Carlo Rizzarda
840 m
Scuola Secondaria di primo grado "Gino Rocca"
1,0 Km
Liceo Classico
1,0 Km
Farmacia Farmacia
Farmacia Ricci
210 m
Farmacia Minciotti
760 m
Farmacia all'ospedale
1,1 Km
Farmacia Pez
1,3 Km
Ospedali Ospedali
Ex casa di cura Villabruna Bellati
770 m
Ospedale Civile
1,0 Km
Ospedale Santa Maria del Prato
1,0 Km
Pronto Soccorso Ospedale Civile Feltre
1,1 Km
Supermercati Supermercati
Coop
280 m
Lidl
570 m
Prix
910 m
Famila
1,2 Km
Kanguro
1,3 Km
Negozi Negozi
Bottega del pane
540 m
Il fornaio
560 m
Trifone
560 m
And_
640 m
Delaito
660 m
Bar Bar
Buffet Stazione
270 m
Ristorante Aurora
460 m
Civico 43
460 m
Bar Italia
490 m
Bar Poste vecchie
510 m
Ristoranti Ristoranti
Ristoranti
420 m
Unisono
480 m
Ristorante Bistro Bandalarga
480 m
Il Cristino Pizza al metro
520 m
Il Cappello
560 m
Mostra tutto

Caratteristiche

Rif.:
60978954
Piano:
3 di 3 (Piano terra)
Posti auto:
3
Balconi:
1
Camere da letto:
3
Condizionamento:
Autonomo
Mostra tutto
Prezzo Prezzo
€ 450.000
Rata mutuo Rata mutuo
€ 2.124 / mese
Spese annue Spese annue
€ 0
Proponi il tuo prezzoProponi il tuo prezzo

Classe Energetica

Questo immobile è esente da classe energetica
Riscaldamento:
Autonomo
Tipo impianto:
A pavimento
Tipo alimentazione:
Metano

Ti interessa visionare l'immobile?

Fissa un appuntamento  Fissa un appuntamento

Richiedi informazioni

Clicca su Leggi per aprire l'informativa
* Questi campi sono obbligatori

Calcola il tuo mutuo

Semplice e senza impegno
Anticipo

( % )
Mutuo

( % )

pochi semplici passi

inserisci i tuoi dati
Questionario completato
Grazie per aver richiesto un appuntamento senza impegno con un nostro Consulente del Credito e Assicurativo.

Hai inserito correttamente tutti i dati necessari e a breve riceverai una e-mail con un link da convalidare per inviare i tuoi dati.
Affiliato
Studio Feltre Srl
Via Porta Imperiale, 3 32032 Feltre (BL)

Il nostro staff


  • Edoardo Maria Cunzo
    Responsabile

  • Silvia Pasetto
    Affiliata
Via Porta Imperiale, 3 32032 Feltre (BL)
Zona: Feltre
Mostra su mappa
Orari: 9:00 - 12:30 / 14:30 - 19:30
Affiliato
Studio Feltre Srl
Via Porta Imperiale, 3 32032 Feltre (BL)

2025 Tecnocasa Franchising S.p.A. - P. IVA 08365160152 - Via Monte Bianco 60/A 20089 Rozzano (MI). Ogni agenzia ha un proprio titolare ed è autonoma. Privacy policy | Policy utilizzo | Cookie policy